Te Koop

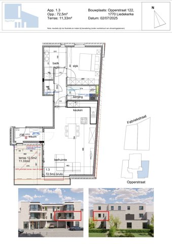
KOOP AAN 6% btw 1 slaapkamer 72,50m² - terras 11,33m²

  • 1 Slaapkamer
  • 72.5 m2
  • 1 parkeerplaats
€ 279.000
Delen op:

Omschrijving

INVESTEER IN DE TOEKOMST EN KOOP EEN BEN APPARTEMENT, AANKOOP 6% btw mogelijk. BEN(Bijna Energie Neutraal): warmtepomp, vloerverwarming, hoog rendements glas, EPC A ... RESIDENTIE OPPERHOF- Nieuwbouwproject in hedendaagse architectuur, gelegen in het centrum van Liedekerke, in de onmiddellijke omgeving van winkels, scholen en bushaltes en treinstation. Het project, bestaande uit 3 bouwlagen (allen bereikbaar met lift), omvat 1 handelsruimte en 5 appartementen van 1 tot 3 slaapkamers, allen met terras. Bij elk appartement hoort een autostaanplaats. Bij dit project gaan kwaliteit, ENERGIEZUINIGHEID en functionaliteit hand in hand. U koopt deze appartementen volledig afgewerkt naar eigen smaak en wensen. Verkoop op plan volgens de WET BREYNE. Eveneens interessant als investering! Bij interesse vraag vrijblijvend het lastenboek via affligem@immoaccenta.be.

Opperstraat 122, 1770 Liedekerke

Aansluitingen
  • Riolering: ja
  • Elektriciteit: ja
  • Water: ja
Basisuitrusting
  • Lift: ja
  • Type verwarming: vloerverwarming
  • Keuken - type: VS volledig geïnstalleerd
  • Badkamer: alle comfort
  • Videofoon: ja
Buitenkant
  • Regenwaterput: ja
Certificaten
  • Bodemattest: ja
  • Elektriciteitskeuring beschikbaar: ja, conform
Energie
  • EPC-klasse: A
  • Renovatieverplichting: Nee
Gebouw
  • Aantal garages: 1
  • Aantal parking binnen: 1
  • Aantal parkings: 1
Hoofdkenmerken
  • Terras 1: 11.33 m²
In cijfers
  • Terras - aantal: 1
  • Surface balkon 1: 11.33 m²
Kadaster
  • Kadaster - sectie: A
  • Kadaster - nr.: 1071/00V
  • Kadaster - opp. (ha/a/ca): 8a 55ca
  • Kadaster - afdeling: Liedekerke 1ste afdeling
Lasten & opbrengst
  • Onder BTW stelsel: ja
Naam, Categorie & Ligging
  • Verdiepingen - aantal: 2
  • Pand in opbouw: ja
Omgeving
  • Oriëntatie: zuid
  • Type buurt: centraal
  • Type buurt 2: woonkern
  • O-Peil: niet gelegen in een overstromingsgevoelig gebied
  • Overstromingsrisico 2023: Klasse A (geen kans)
  • G-score: A
  • P-score: A
Prijs & kosten
  • BTW van toepassing: 6%
Technische uitrusting
  • Type schrijnwerkerij: aluminium
  • Type beglazing: HR-glas type of window
Veiligheid
  • Branddetector: ja
Woonomgeving
  • Winkels: 100 m
  • Scholen: 750 m
  • Openbaar vervoer: 300 m
  • Autostrade: 4300 m
  • Station: 2000 m
Juridisch
  • Servitude: ja
  • Bouwvergunning: ja
  • Bestemming gebouw - type: privé - eengezins
  • Terrein - bestemming: woongebied

Vraag informatie over dit pand

Wij respecteren jouw privacy. Jouw gegevens worden altijd vertrouwelijk behandeld.

GEVARIEERD AANBOD
PERSOONLIJKE AANPAK
FLEXIBILITEIT
SCHATTING BINNEN 24U
Gratis Waardebepaling