Te Koop

RESIDENTIE OPPERHOF gelijkvloerse ruimte kantoor/winkel

  • 149.7 m2
  • 3 parkeerplaatsen
€ 339.000
Delen op:

Omschrijving

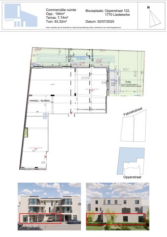
Commercieel gelijkvloers met voldoende visibiliteit geschikt voor zowel handelsdoeleinden als kantoor, gelegen in de RESIDENTIE OPPERHOF. Een nieuwbouwproject in hedendaagse architectuur, gelegen in het centrum van Liedekerke, in de onmiddellijke omgeving van winkels, scholen en bushaltes en treinstation. Het project, bestaande uit 3 bouwlagen, omvat 1 handelsruimte en 5 appartementen van 1 tot 3 slaapkamers. Vooraan het gebouw bevinden zich 3 autostaanplaatsen, afzonderlijk te koop. Bij dit project gaan kwaliteit, ENERGIEZUINIGHEID en functionaliteit hand in hand. De ruimte wordt casco opgeleverd en desgevallend afgewerkt naar wens. Bij interesse vraag vrijblijvend het lastenboek via affligem@immoaccenta.be.

Opperstraat 122, 1770 Liedekerke

Gebouw
  • Aantal parking buiten: 3
  • Aantal parkings: 3
Naam, Categorie & Ligging
  • Verdiepingen - aantal: 2
  • Pand in opbouw: ja
Energie
  • Renovatieverplichting: Nee

Vraag informatie over dit pand

Wij respecteren jouw privacy. Jouw gegevens worden altijd vertrouwelijk behandeld.

GEVARIEERD AANBOD
PERSOONLIJKE AANPAK
FLEXIBILITEIT
SCHATTING BINNEN 24U
Gratis Waardebepaling