Te Koop

rue Marais d'Acren

  • 2152 m2
€ 235.000
Delen op:

Omschrijving

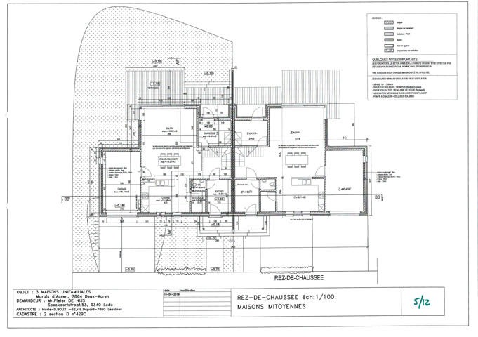
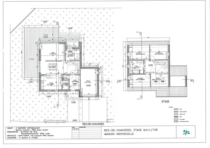
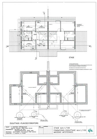
DRIE LOTEN BOUWGROND ( MET VERGUNNING) TE KOOP Mooie bouwgronden te koop in doodlopend straatje LOT 1. Bouwgrond van 7a85ca voor een open bebouwing, mooi gelegen in Twee-Akren in doodlopend straatje LOT 2 + LOT 3: Twee goed gelegen bouwgronden voor twee unifamiliale woningen in HOB verband. Één van 6a21ca en één van 7a46ca. Goedgekeurde bouwvergunning. Info en plannen beschikbaar. Aarzel niet te bellen naar Sophie op 0496/71.50.59
Omgeving
  • O-Peil: niet gelegen in een overstromingsgevoelig gebied
Energie
  • Renovatieverplichting: Nee

Vraag informatie over dit pand

Wij respecteren jouw privacy. Jouw gegevens worden altijd vertrouwelijk behandeld.

GEVARIEERD AANBOD
PERSOONLIJKE AANPAK
FLEXIBILITEIT
SCHATTING BINNEN 24U
Gratis Waardebepaling