Landelijk gelegen vrijstaande woning

  • 3 Slaapkamers
  • 136 m2
  • 540 m2
  • 3 parkeerplaatsen
Delen op:

Omschrijving

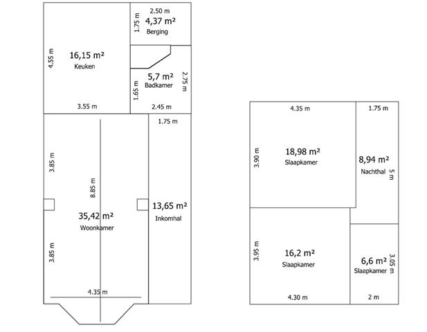
Charmante plattelandswoning, ideaal voor jong gezin, met in de buurt heel wat wandel- en sportmogelijkheden. Op het gelijkvloers komt men binnen in een ruime inkomhal die overgaat in de traphal waar men toegang heeft tot de kelder en de verdieping. De lichtrijke woonkamer bestaat uit een zit- en eetgedeelte met aansluitend de keuken. De keuken zelf is ingericht met boven- en onderkasten, elektrische kookplaat, dampkap, oven en aansluiting voor een vaatwasmachine(niet aanwezig) en biedt ook nog ruimte voor een eettafel. Vervolgens hebben we de wasplaats, voorzien van aansluiting voor wasmachine en droogkast en de verwarmingsinstallatie(condensatieketel). Rechts van de keuken treffen we de badkamer aan die bestaat uit een ligbad met douchefaciliteit, enkele lavabo en toilet. Op de verdieping heeft men een nachthal/traphal met toegang tot 3 slaapkamers. Verder is er ook nog een vaste trap naar de geïsoleerde zolder die mogelijkheid biedt tot heel wat bergruimte. De woning is omgeven door een gezellige, onderhoudsvriendelijke en zongerichte tuin (zuid). Voor uw wagen is er een ruime garage of parkeergelegenheid naast de woning voorzien. Voor meer info of eventueel een bezoek mail naar affligem@immoaccenta.be.

Bosstraat 36, 1790 Affligem

Aansluitingen
  • Riolering: ja
  • Elektriciteit: ja
  • Kabeltelevisie: ja
  • Gas: ja
  • Water: ja
Basisuitrusting
  • Type verwarming: gas cv
  • Keuken - type: geïnstalleerd
  • Badkamer: douche in bad
Energie
335
  • EPC-klasse: D
  • EPC (Kwh/m²/j): 335
  • EPC unieke code: 955751
  • EPC geldig tot: 23/05/2027
  • EPC datum: 23/05/2017
  • Renovatieverplichting: Nee
Gebouw
  • Bouwjaar: 1945
  • Aantal garages: 1
  • Renovatie - jaar: 2017
  • Aantal parking buiten: 3
  • Aantal parkings: 4
In cijfers
  • Bebouwde oppervlakte: 83 m²
  • Toiletten - aantal: 1
  • Slaapkamer 1: 20 m²
  • Slaapkamer 2: 16 m²
  • Slaapkamer 3: 7 m²
  • Gevelbreedte - breedte: 7 m
  • Terras - aantal: 1
  • Woonkamer: 35 m²
  • Keuken: 16 m²
  • Badkamer: 6 m²
  • Hal - oppervlakte: 13.5 m²
  • Nachthal: 9 m²
Lasten & Kosten
  • Huurgarantie - aantal maanden: 3
Naam, Categorie & Ligging
  • Verdiepingen - aantal: 2
Omgeving
  • Oriëntatie: zuid
  • Type buurt: landelijk
  • Type buurt 2: stadsrand
  • O-Peil: niet gelegen in een overstromingsgevoelig gebied
Technische uitrusting
  • Type schrijnwerkerij: pvc
  • Type beglazing: dubbele beglazing
Veiligheid
  • Branddetector: ja
Woonomgeving
  • Winkels: 1500 m
  • Scholen: 500 m
  • Openbaar vervoer: 1100 m
  • Autostrade: 4300 m
  • Station: 5200 m
Downloads

Vraag informatie over dit pand

Wij respecteren jouw privacy. Jouw gegevens worden altijd vertrouwelijk behandeld.

GEVARIEERD AANBOD
PERSOONLIJKE AANPAK
FLEXIBILITEIT
SCHATTING BINNEN 24U
Gratis Waardebepaling